Zaključen je natečaj UNIVERZA V MARIBORU: FAKULTETI UM FS IN UM FKKT
Novica
Aktualno
Javni natečaj UM FS IN UM FKKT (novogradnja Fakultete za strojništvo in novogradnja ter prenova Fakultete za kemijo in kemijsko tehnologijo univerze v Mariboru (INNOVUM) je zaključen.
Zmanjšano prvo nagrado prejmejo avtorji:
BIRO 81000 d. o. o. + KUBICO DOMINO ARHITEKTI d. o. o.
Goran Dominko, univ. dipl. inž. arh.
Dušan Đurović, m. arch.
Ivan Jovićević, m. arch.
Mina Gutović, mag. inž. arh.
Sodelavci, konzultanti, izvedenci:
Sara Tomić, m. arch.
Milica Doderović, m. arch.
Zmagovalcem iskreno čestitamo, vsem udeležencem in naročniku pa se zahvaljujemo za sodelovanje in zaupanje. Želimo vam uspešno nadaljevanje dela!
V zaključnem poročilu ocenjevalna komisija med drugim zapiše:
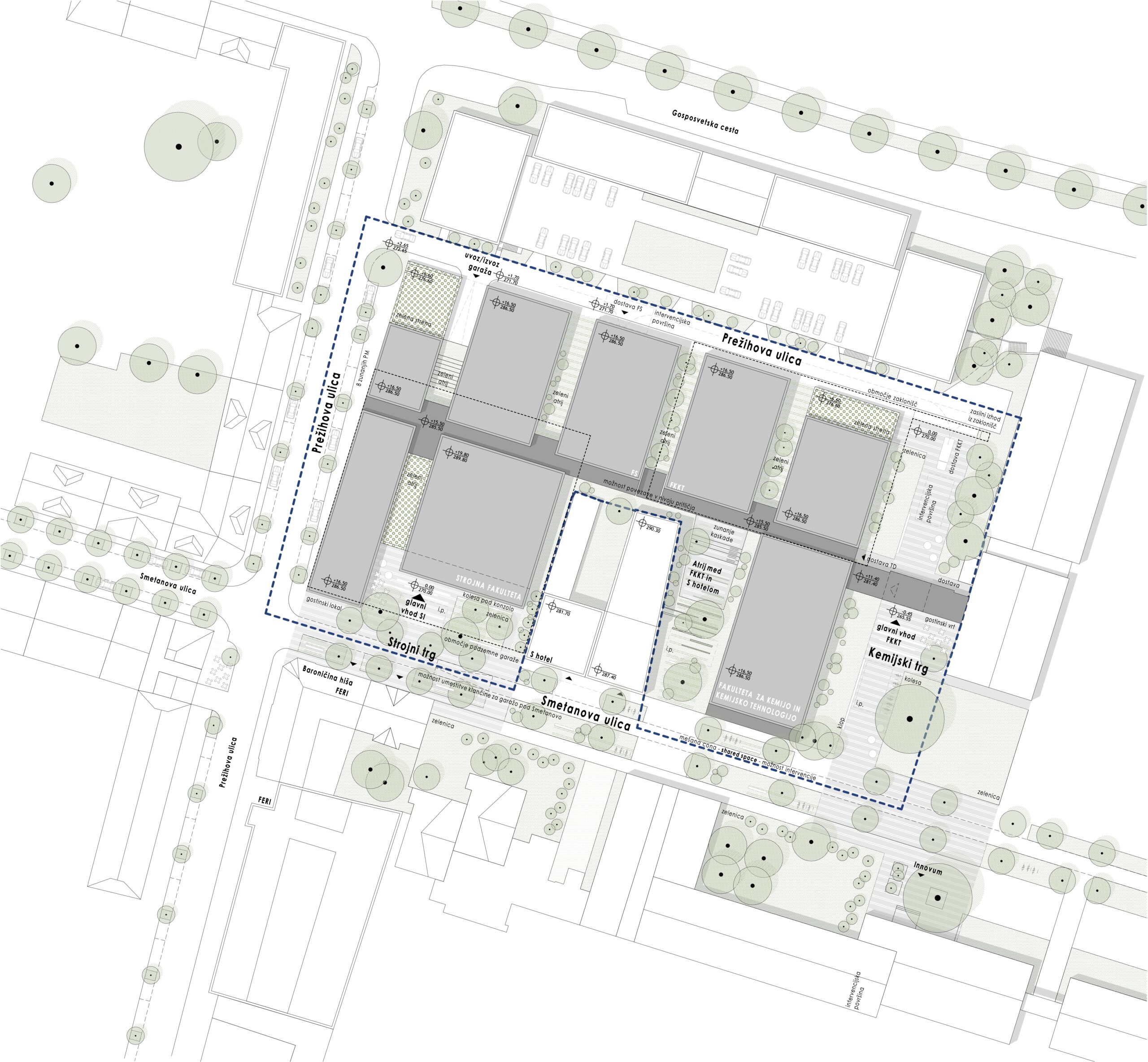
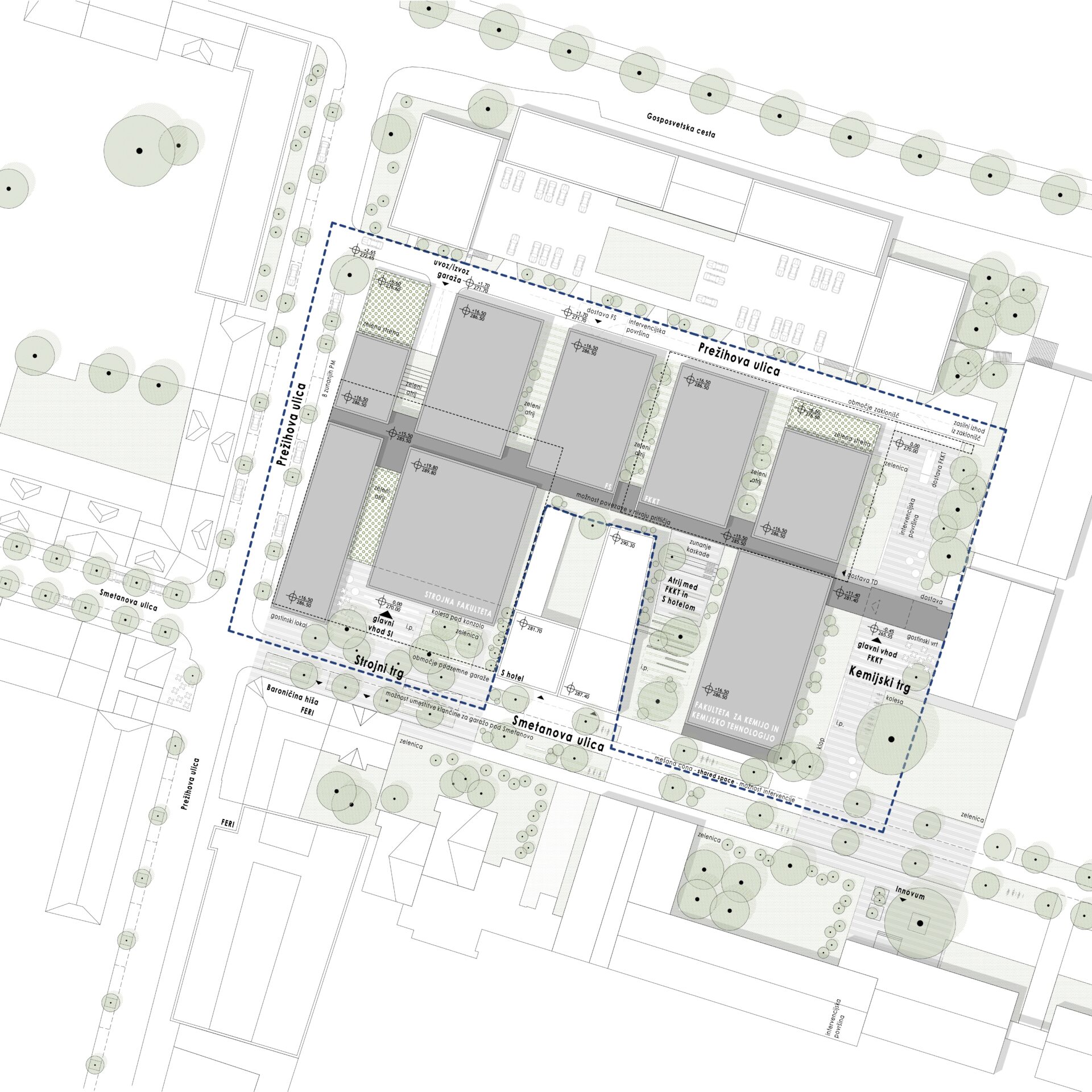
Na javni, projektni, enostopenjski natečaj za izbor strokovno najprimernejše rešitve za UM FS in UM FKKT (novogradnja Fakultete za strojništvo ter novogradnjo in prenovo Fakultete za kemijo in kemijsko tehnologijo Univerze v Mariboru) je prispelo deset natečajnih rešitev.
Lokacija natečaja se nahaja v neposredni bližini mestnega središča, kjer so že v obstoječem stanju umeščene številne fakultete UM. Za mesto Maribor predstavlja preureditev univerzitetnega središča s širitvijo v mestni kampus izjemno razvojno priložnost s ciljem integracije univerze v mestni prostor in s tem tudi nadgradnje aktivnega urbanega značaja mesta.
Zahtevani program se je delil na program FS, ki je obsegal primarno novogradnjo na zahodnem delu lokacije, ter program FKKT, ki je svojo umestitev reševal s prenovo obstoječega objekta in delno novogradnjo. V vseh elaboratih je bila kvalitativna pozornost usmerjena v oblikovanje novih univerzitetnih tipologij, ki so se morale prilagajati zahtevnim prostorskim danostim in pogojem lokacije. Kljub temu, da so rešitve natečajno nalogo obravnavale »v pretežno obstoječih okvirjih«, so natečajne rešitve pokazale visoko stopnjo inventivnosti. Na območju, predvidenem za gradnjo FS so imeli natečajniki več možnosti za razvoj arhitekturne rešitve fakultete s ciljem oblikovanja vstopnega območja v univerzitetni kampus, medtem ko so bili v primeru objekta FKKT primorani iskati rešitve, ki so se čim bolj prilagajale obstoječemu objektu.
Skupna značilnost elaboratov prejemnikov nagrad je, da dosegajo najboljše razmerje med urbanističnimi parametri, berljivostjo arhitekturne zasnove, kvalitete notranjega univerzitetnega prostora znanja in oblikovno arhitekturnimi elementi. Rešitve ponujajo jasno členitev objektov v programske sklope, ki so logični in funkcionalno berljivi.
Natečaj je kakovostno odgovoril na zastavljeno nalogo. Elaborati so prikazali visok nivo izkazane arhitekturne kvalitete.