Univerza v Mariboru: fakulteti UM FS in UM FKKT
Natečaj
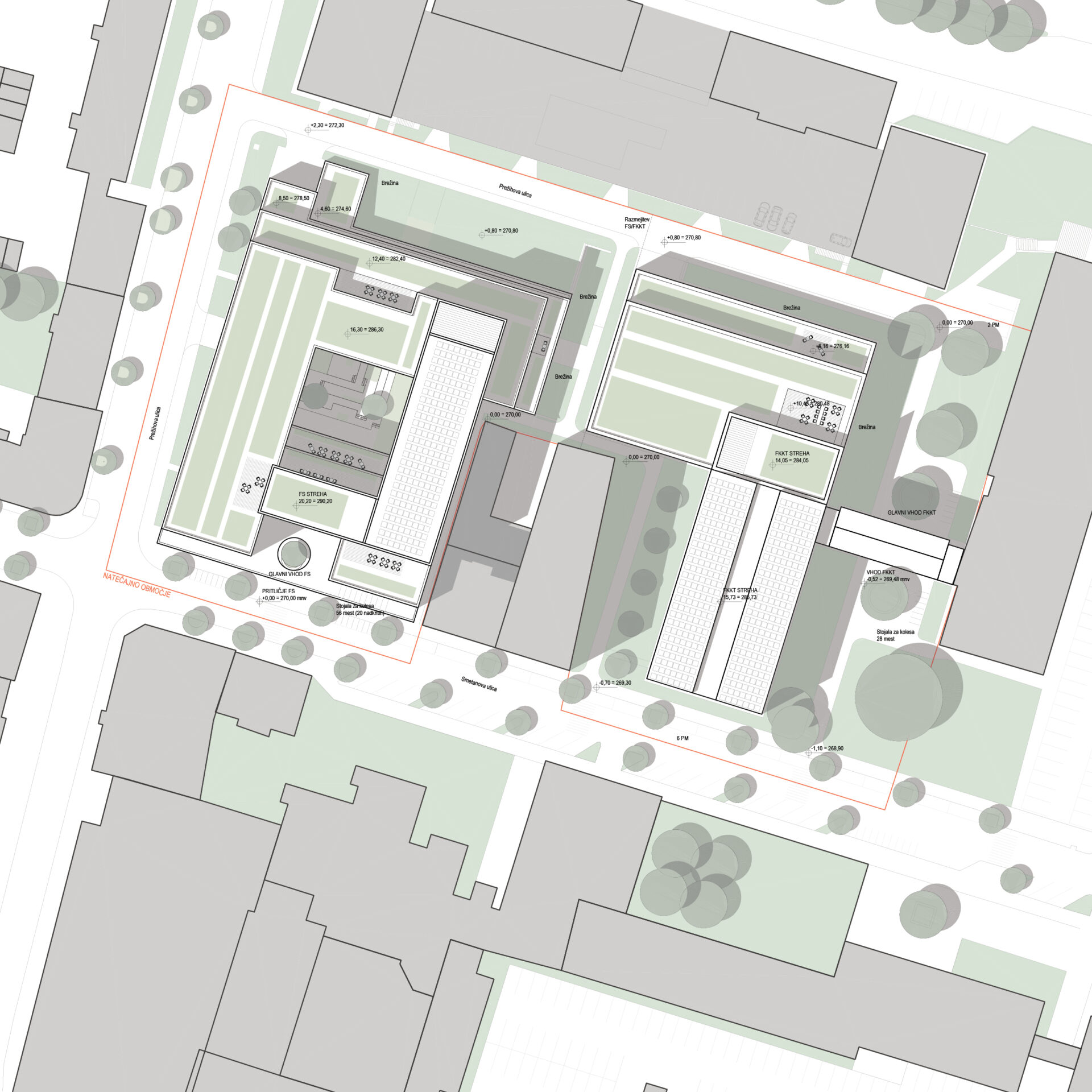
Predmet projektnega natečaja
Predmet natečaja: Javni, projektni, enostopenjski natečaj za izbiro strokovno najprimernejše rešitve za UM FS IN UM FKKT (novogradnja Fakultete za strojništvo in novogradnja ter prenova Fakultete za kemijo in kemijsko tehnologijo univerze v Mariboru (INNOVUM)).
Predmet projektnega natečaja je prostorska umestitev in izdelava arhitekturne rešitve za severni sklop kampusa tehniških fakultet Univerze v Mariboru, in sicer za:
• izgradnjo nove stavbe Fakultete za strojništvo (UM FS),
• dograditev in prenova stavbe Smetanova u. 18., za potrebe Fakultete za kemijo in kemijsko tehnologijo (UM FKKT), ki vključuje prenovo obstoječe stavbe III. gimnazije ter novogradnjo laboratorijskega sklopa na njeni severni strani, z zahtevo po neposredni povezavi,
• celostno zasnovo zunanje ureditve severnega sklopa kampusa, ki obsega ureditve dostopov, prometnih in servisnih površin novogradenj ter oblikovanje odprtih javnih površin, z jasno navezavo natečajnega območja na južni del kampusa in širši urbani kontekst.
Naročnik: Univerza v Mariboru
Vodeni ogled: 9. 9. 2025 ob 13:00 uri prijava za ogled lokacije: 8. 9. 2025 do 13:00 na email: natecaji@zaps.si
Dodatni termin za vodeni ogled: 30. 9. 2025 ob 13:00 uri prijava za ogled lokacije: 29. 9. 2025 do 13:00 na email: natecaji@zaps.si
Rok za prijavo: 24. 10. 2025 število prijav: 24 (28.10.2025)
Rok oddaje: 25. 11. 2025
Število prejetih elaboratov: 10
Povezava na Portal JN
Prijava na natečaj:

Podatki o nagradnem skladu, priznanjih in odškodninah:
UM FS
1. nagrada 16.000 EUR
2. nagrada 12.000 EUR
3. nagrada 8.800 EUR
UM FKKT
1. nagrada 12.000 EUR
2. nagrada 9.000 EUR
3. nagrada 6.600 EUR
tri priznanja po 4.000 EUR
šest odškodnin po 1.000 EUR
Skupni znesek nagradnega sklada: 76.400 EUR.
Skupni znesek odškodninskega sklada: 6.000 EUR.
V primeru, da bo podeljenih več kot 6 odškodnin, se znesek posamezne odškodnine ustrezno zniža. Vsi navedeni zneski so v bruto bruto vrednostih.
Dodatne informacije in vprašanja
Za dodatne informacije in vprašanja o natečaju lahko ponudniki posredujejo vprašanja preko Portala javnih naročil tako, da izberejo možnost “Pošlji vprašanje naročniku”. Naročnik bo odgovore na vprašanja objavil na Portalu javnih naročil v skladu z določenimi roki.
DOKUMENTACIJA
A_natečajni pogoji
B_natečajna naloga
C_natečajne podloge
D_natečajne priloge
DOP_C5_FS_20-25_KTMO
DOP C7_3D_model_osoncenje
D_4 DOP1_Smetanova_18_fotografije
C_5 DOP1_laboratoriji_dodatno gradivo.zip
D2_DOP1_Mnenja_NUP_DRSV_Potrditev izdanih smernic Ureditvenega načrta dela soseske S-8
Obvestilo o izidu in zakjučno poročilo
OCENJEVALNA KOMISIJA
Predsednik ocenjevalne komisije (ZAPS):
doc. Gašper Medvešek, univ. dipl. inž. arh.
Namestnik predsednika ocenjevalne komisije (naročnik):
prof. dr. Miralem Hadžiselimović, prorektor za infrastrukturo UM
Član (naročnik):
izr. prof. Uroš Lobnik, univ. dipl. inž. arh.
Član (naročnik):
asist. dr. Andrej Šmid, dipl.-ing. arch., Rep. Avstrija
Član (ZAPS):
izr. prof. mag. Dinko Peračić, univ. dipl. inž. arh.
Namestnik članov (naročnik):
red. prof. dr. Peter Šenk, univ. dipl. inž. arh.
Namestnik članov (naročnik):
doc. Tomaž Ebenšpanger, univ. dipl. inž. arh.
Namestnik članov (ZAPS):
Rok Staudacher, mag. inž. arh.
Poročevalec A:
asist. Žiga Kreševič, univ. dipl. inž. arh.
Pomočnik poročevalca A:
asist. Nejc Novak, mag. inž. arh.
Poročevalka KA:
mag. Mojca Novak, univ. dipl. inž. kraj. arh.
Izvedenec za program UM FS:
red. prof. dr. Matej Vesenjak, univ. dipl. inž. str.
sodelavec-pomočnik izvedenca za program UM FS (od 2.10.2025):
red. prof. dr. Zoran Ren
Izvedenec za program UM FKKT:
red. prof. dr. Zoran Novak, univ. dipl. inž. kem. tehnol.
sodelavec-pomočnik izvedenca za program UM FKKT (od 2.10.2025):
prof. dr. Matjaž Finšgar,
Izvedenec za investicijo:
Igor Špolar, univ. dipl. inž. grad.
Izvedenec za osončenje:
Urh Vidmar, dipl. ing. pom.
Izvedenec za varstvo kulturne dediščine (ZVKD OE MB):
Nina Nahtigal, univ. dipl. um. zgod., konservatorska svetovalka
Barbara Lečnik, dipl.-ing., Republika Avstrija, konservatorka
Izvedenec za požar:
mag. Aleš Drnovšek, univ. dipl. inž. el.
Izvedenec za strojne instalacije:
izr. prof. dr. Filip Kokalj, univ. dipl. inž. str.
Skrbnica natečaja:
Sandra Banfi Škrbec, univ. dipl. inž. arh.
Pomočnica skrbnice:
Anja Peček, mag. inž. arh.
Skrbnik projekta na strani naročnika:
mag. Dejan Senekovič
Sporočilo za javnost št. 1: Dodatni termin za vodeni ogled
Dodatni termin za vodeni ogled: 30. 9. 2025 ob 13:00 uri prijava za ogled lokacije: 29. 9. 2025 do 13:00 na email: natecaji@zaps.si
Sporočilo za javnost št. 2: Dopolnjeno natečajno gradivo
Med natečajnim gradivom smo:
– ponovno objavili datoteko DOP_C5_FS_20-25_KTMO.xlsx (prejšnja se ni odpirala) ter
– objavili mapo DOP C7_3D_model_osoncenje, s 3D modelom celote (za dokazovanje ustreznosti osončenja) in 3D modelom vstavka (za natečajnike, ki bi želeli sami stiskati osnovni vstavek za izdelavo makete rešitve. Sicer je mogoče vstavek še vedno prevzeti pri naročniku – glej natečajne pogoje).
Natečajniki naj za namen preveritve osončenja izdelajo preprost masni model brez detajlov in ga oddajo v *.ifc, *.dwg ali rhino 5 formatu.
Sporočilo za javnost št. 2: Dodatni termin za vodeni ogled - ODPADE
Ker do roka za prijave nismo prejeli zadostnega števila prijav, ogled lokacije, predviden za 30. 9. 2025, odpade.
Sporočilo za javnost št. 3: Dopolnjeno natečajno gradivo
Med natečajnim gradivom smo objavili dodatno gradivo vezano na vsebinska vprašanja in odgovore:
Sporočilo za javnost št. 4: Dopolnjeno natečajno gradivo
Med natečajnim gradivom smo objavili dodatno gradivo vezano na vsebinska vprašanja in odgovore:
D2_DOP1_Mnenja_NUP_DRSV_Potrditev-izdanih-smernic-Ureditvenega-nacrta-dela-soseske-S-8.pdf
Vložen zahtevek za revizijo
Dne 22.01.2026 je bil na portal eRevizija vložen zahtevek za revizijo. V skladu z 4.23 točko natečajnih pogojev se izplačilo nagrad, priznanj in odškodnin zadrži do zaključka revizijskega postopka.
Portal JN
Odločitev DKOM o zahtevku za revizijo
Državna revizijska komisija je 24.3.2026 sprejela odločitev o revizijskem zahtevku vlagatelja STYRIA ARHITEKTURA d.o.o. in ARHISOL d.o.o.. Iz odločitve izhaja, da je zahtevek za revizijo zavrnjen kot neutemeljen.
Vabilo na razstavo
Otvoritev razstave bo v četrtek, 23. aprila 2026, ob 14. uri v v predavalnici Boruta Pečenka na Fakulteti za gradbeništvo, prometno inženirstvo in arhitekturo Univerze v Mariboru (Smetanova ulica 17, Maribor).